Voor het ontwerpen van een interieur ben ik consequent op zoek naar spanning en contrast - contrasten in hoogte-breedte, donker-licht maar ook in materiaalgebruik en kleur.
Mijn jarenlange ervaring in de productie van meubelstukken en kennis van materialen dragen zeker bij.
RENOVATIE WONING
HERBESTEMMING SCHUUR
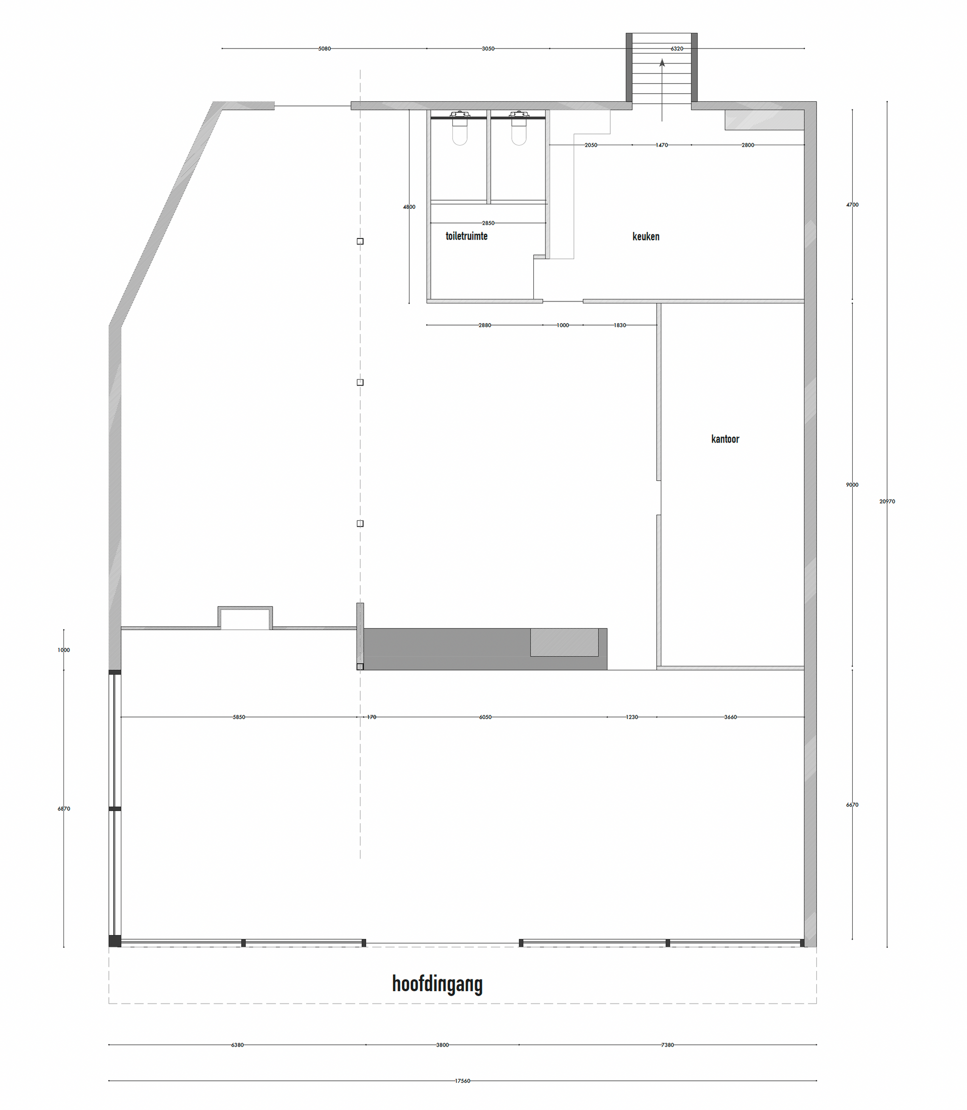
VERBOUWING GARAGE
Kantoor op de begane grond en een luxe B&B op de verdieping.
REALISATIE fysiotherapie praktijk
ONTMOETINGSRUIMTE
KASTEEL - RUINE
WACHTKAMER EN BALIE
Betrokken partijen :
| Hendriks Lightvision - verlichting
| de Maakfabriek - interieurbouw
| Donkerwit - grafisch ontwerp
| Cuypers Glas - glas / hang en sluitwerk
| YB Projects - elektrotechniek
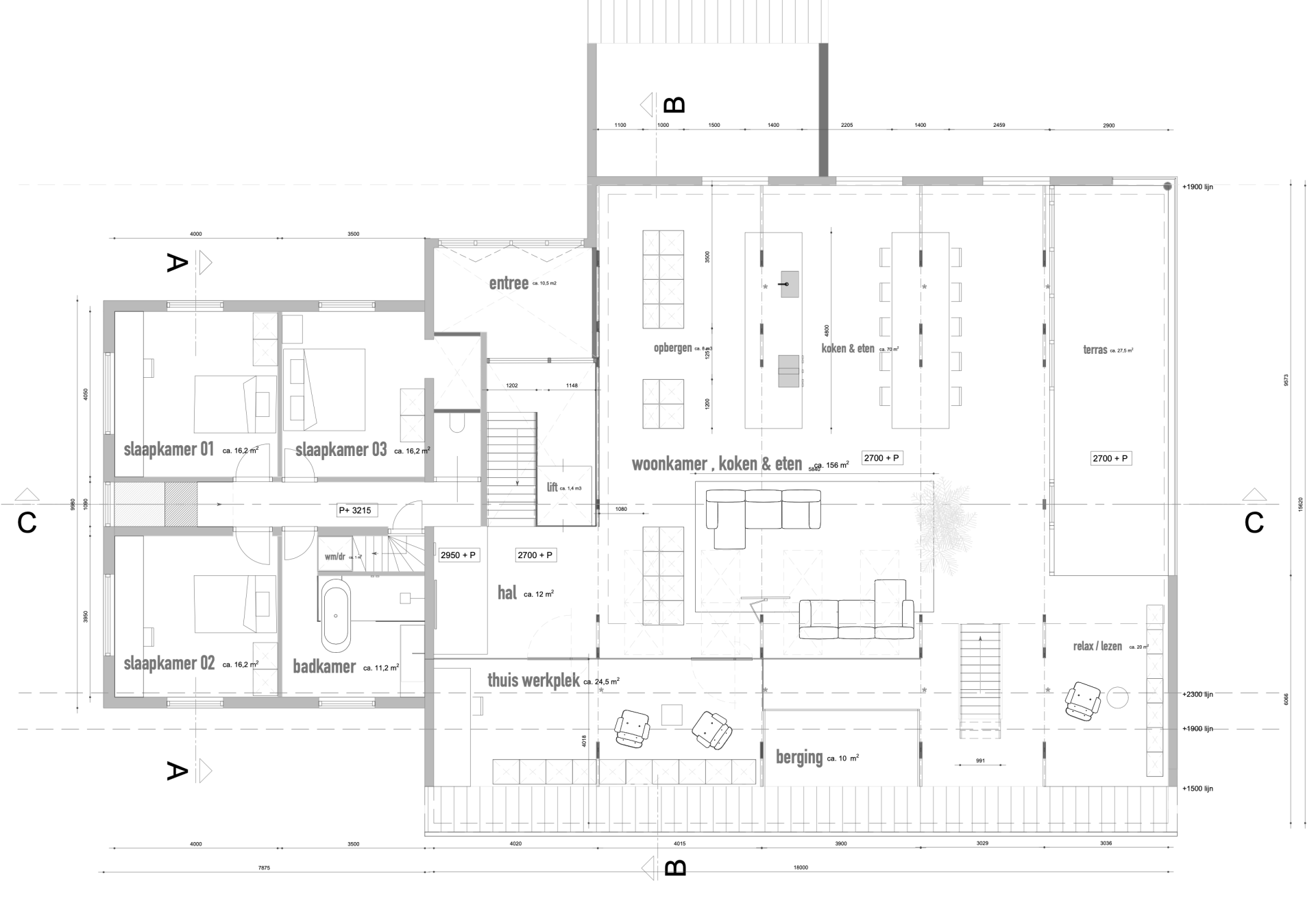
WOONHUIS
ONTMOETINGSRUIMTE
Betrokken partijen :
| Hendriks Lightvision - verlichting
| de Maakfabriek - interieurbouw
| Donkerwit - grafisch ontwerp
| Forbo - vloer en printwerk
| Janssen de Jong - onderhoud plus - aannemer
ONTVANGSTRUIMTE
WONING
Betrokken partijen :
| Hendriks Lightvision - verlichting
| de Maakfabriek - interieurbouw
| Cuypers Glas - glas / hang en sluitwerk
| YB Projects - elektrotechniek
PRIVE WONING
Betrokken partijen :
| Hendriks Lightvision - verlichting
| de Maakfabriek - interieurbouw
| Gatto Mosaiccisti - badkamer
| Cuypers Glas - glas / hang en sluitwerk
| Centrum verhuizingen - export naar Zwitserland
WOONBOERDERIJ
Betrokken partijen :
| Hendriks Lightvision - verlichting
| de Maakfabriek - interieurbouw
| YB Projects - elektrotechniek
| Cuypers Glas - glas / hang en sluitwerk

WOONHUIS
MUSEUM
FYSIOTHERAPIE
BADKAMER
BADKAMER
LUNCHROOM
UITBOUW
MEUBELS
Ralph Hagen
Product design | interieur architectuur | Concepten
Na een start bij een architectenbureau in Londen ben ik in 2003 met een collega een interieurarchitectenbureau gestart.
6 jaar later kreeg ik de ingeving om een bedrijf te starten met de meeste exclusieve en duurzame chocolade soorten.
Dit heeft me een aantal drukke jaren opgeleverd met klanten zoals de Bijenkorf, sterrenrestaurants en zelfs opdrachten in Dubai.
In het jaar 2016 kochten we als familie ons droomhuis - een voormalig koetshuis - en ben ik weer aan het ontwerpen geslagen.
R-HGN is een feit.











































































































































































